当前位置> 拼版设计师  [关闭]
 
  软件下载 点击QQ:181077882  索要操作视频
  操作指南  
选中CDR中一个图形,然后点击这个图标,它会告诉你这个图形是否可以自动拼版。

   选中CDR中一个包装或标签,然后点击这个图标,它会告诉你这个选区中包含有多
少个未转曲的文本,多少个图片以及填色情况。

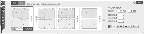
   点击该按钮将打开下面的设置面板,首先你可以把要拼的包装或图形按下面的样
式进行手动试拼,必须拼到你认为正确的位置就点击【试拼】。试拼正确后点击【确】。试拼时注意输入必要的参数。无误后退出该面板。下面你就可以使用--自动拼版了。

  注意:如果是本软件【包装设计师V6]】绘制的包装不需要进行刀模识别这一
步,直接进入【自动】拼版即可自动拼版

   
   

包装克隆。当你用包装设计师画了一个A结构或者B结构,就可以选用该功能自动克隆另一个对应的结构,而不必再回到包装设计师去画。快速
准确。

快速对插,当你的包装是AB对插结构,只要选中A,或者B结构,程序
会自动在页面中寻找另一个结构,并瞬间自动对插。但在对插前应设置
好间距。

纸张一般不需要自定。但如果你需要自己特定的纸张来拼
版,那么可以选择自定纸张。点击后会显示尺寸输入框。

拼法-----

        

      

混拼----包装结构 和尺寸相同的可以混拼。操作时选择所有要混拼
的所有对象,输入间距参数,然后在自动拼版中选择【混拼】

点击该按钮显示咬口边距等设置面板

 

 

该面板有三个设置选项

1)纸张:添加或减少平板纸或卷筒纸的出厂规格,拼版时会将所设置的所有规格纸张全部拼一次,然后根据让费率进行优选,最终列出最佳的拼版方案供您选择。

2)拼版咬口边距等,见上截图

3)使用方案显示规则。因为全部所列纸张全部参与拼版,导致拼版方案太多,所以你可以根据需要设置一个允许通过的让费率。超过让费率的在拼版方案中将不会显示

一切就绪,点击【拼吧】弹出下面的拼版方案窗口 \
     
拼版方案窗口

   进行到这一步,显示了该窗口就表示拼版全部结束,所有拼版方案已经列出。剩下的就是由你根据需要自己选择了。

  首先选择所需的开幅,列表会显示该开幅的方案列表,默认会自动选择【卷筒纸】

   幅宽----解释

  中除号前面的1000表示卷筒纸的出厂规格尺寸,除号后面数字2表示在幅宽方向一分为二.如果是3就表示一分为三。选择时注意检查

   另外,选择一个方案时,窗口上面会显示该方案的产品尺寸及咬口,边距,间距(双单刀)等参数,要认真检查是否合适

角线--------

  表示拼版后CDR页面将会按选择的开幅大小显示 。
  拼版时将会在CDR页面中间显示
  按你拼版时选择的第一个包装左上角位置显示
     
 

  选择一个方案,点击【应用】时立即在CDR中拼版,但不会退出窗口,你可以随时变换选择并观察拼版效果,变换选择时已经在CDR中拼了版的不要管它,重新选择方案再拼时会自动删除上一次的拼版图再拼。你也可以点击【撤销】删除前一次的拼版。点【确认】拼版后会立即退出窗口,拼版完成。

 

 

 

线长-----指角线绘制的长度    线粗-----指角线条的粗细

边距-----指拼版边缘到角线起绘点的距离

 
拼版时在咬口面标注拼版时间,保存路径、文件名等信
执行角线绘制
执行折痕线绘制
点击 刀模线处理 出现下面选项:
显示-----当结构线处于隐藏状态时恢复显示

隐藏-----隐藏结构线

提取-----从拼版图中把结构线复制一份到页面右侧

文本转曲线,可在群组或容器中查找转曲
拼版编号,使用自动糊盒机时需要
包装粘位互换-----左右互换
对象替换,如在拼版后需要替换某个板块,可以使用该功能准确替换。
   
     
  
 

Copyright @ XKSpace.cn.All Rights Reserved QQ:9616010 181077882 

ryan_ncu@aliyun.com       粤ICP备09016938号    粤公网安备 44030702002149号